P R O P E R T I E S

Amstelhof

bv

Plattegronden van de woningen van Amstelhof Properties

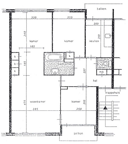
Plattegrond van een woning in de 'hoogbouw'

Hoogbouw

- woonkamer

- 4 slaapkamers (Soms 3 wanneer de muur tussen de hal en de naastliggende slaapkamer verwijderd is waardoor er een grotere hal is ontstaan.)

- aparte keuken

- toilet

- badkamer

- 2 balkons

In de meeste woningen zijn de op de plattegrond aangegeven inbouwkasten nog aanwezig.

Plattegrond van een woning in de 'laagbouw'

Laagbouw

- woonkamer met achterkamer met inbouwkasten

- 2 slaapkamers

- aparte keuken

- inpandige badkamer

- toilet

- 2 balkons

 

Amstelhof Properties bv - KvK 33208036

 De Lairesse Bouwmanagement bv - KvK 34139656

 Generaal Vetterstraat 77 A, 1059 BT Amsterdam - Disclaimer